Проект №34 Дом с эркером 9х10

каркас из строганой доски
Создайте свой план для этого проекта
и отправьте его нам на расчет в один клик.
Каркасный дом (150 мм) 9х10 Толщина утепления 150 мм 2660300 Заказать
Каркасный дом (200 мм) 9х10 Толщина утепления 200 мм 2870300 Заказать

Пользуйтесь нашим планировщиком, чтобы адаптировать под свои интересы готовый проект и получить личную планировку.

При помощи планировщика можно сделать схемы, чертежи, планы, эскизы дома с эркером, мансардой, с несколькими спальнями. Таким образом вы получите идеальный проект, 100% отвечающий вашим условиям.

Вы сможете выбрать тип кровли. Вашу крышу можно сделать четырехскатной, двускатной и вальмовой. Двухскатная считается особенно популярной у малометражных построек.

Востребованные размеры домов на сегодняшний день: мини - до 50м2 (как правило, 1-этажные); компактные - от 70 до 100 кв. М (обычно двухэтажные); большие постройки - от 150 кв. М и более.

Предлагаем дуплексы - большие каркасные постройки с 2-мя входами, рассчитанные на проживание нескольких семей. Подобные дома строятся сразу для нескольких хозяев и делятся на две половины, каждая половина с отдельным входом.


Наши работы

Перейти в галерею


Комплектация

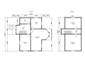
Площадь застройки: 90 м2
Длина: 9 м
Ширина: 10 м
Общая площадь: 86.8 м2
Исполнение Под ключ (с отделкой)
Фундамент Свайно-винтовой или ж/б сваи (рассчитываются отдельно).
Гидроизоляция фундамента Рубероид в два слоя.
Основание (обвязка) Из обрезного бруса 150х150 мм. 150х200 мм. согласно выбранной толщине утепления. Торцевая доска строганая 45х145/45х195+/-5 мм. согласно выбранной толщине утепления. Обработка антисептиком.
Цокольное перекрытие Строганая доска камерной сушки 45х145/45х195+/-5 мм. с шагом 590 мм. Обработка антисептиком.
Пол черновой Обрезная доска камерной сушки 20х100 мм.
Влаго-ветрозащита чернового пола Мембрана Ондутис А100.
Внешние стены Стойки каркаса из строганой доски камерной сушки 45х145/45х195+/-5 мм. с шагом 590 мм. Верхняя двойная и нижняя обвязки из строганой доски камерной сушки 45х145/45х195+/-5 мм. Разгрузочный ригель из строганой доски 45х145+/-5 мм. Укосины из строганой доски 20х95 мм.
Перегородки Стойки каркаса из строганой доски камерной сушки 45х95+/-5 мм. с шагом 590 мм. Верхняя двойная и нижняя обвязки из строганой доски 45х95+/-5 мм. Разгрузочный ригель из строганой доски камерной сушки 45х145+/-5 мм. Укосины из строганой доски камерной сушки 20х95 мм.
Сборка каркаса На гвозди.
Высота от пола до потолка Дом одноэтажный: 2,5 м. Дом с мансардой: 1-ый этаж- 2,5 м.
2-ой этаж (мансарда)- 2,3 м.
Дом в полтора и два этажа:
1-ый этаж 2,5 м.
2-ой этаж 2,4 м. в полутораэтажном доме
2,5 м. в двухэтажном доме.
Внешняя отделка стен Имитация бруса камерной сушки, сорт АВ, толщиной 17 мм. Монтаж через строганый брусок камерной сушки 45х45+/-5 мм. (вентилируемый фасад). Влаго-ветрозащитная мембрана- Ондутис А100.
Внутренняя отделка стен, перегородок Евровагонка камерной сушки, сорт АВ, толщиной 12,5 мм. по строганой рейке 20х40+/-5 мм. либо ГКЛ 12,5 мм.
Отделка потолка Евровагонка камерной сушки, сорт АВ толщиной, 12,5 мм. по строганой рейке 20х40+/-5 мм. либо ГКЛ 12,5 мм.
Пол чистовой Шпунтованная доска камерной сушки толщиной 35-36 мм. сорт АВ. по строганой рейке 20х40+/-5 мм. либо шпунтованная ДСП 16 мм. по разряженной обрешётке из строганой доски камерной сушки 20х95+/-5 мм.
Утепление (пол, потолок) Минеральная вата Knauf 150/200 мм. согласно выбранной толщине утепления.
Утепление стен Плитный утеплитель Rockwool, толщиной 150/200 мм. согласно выбранной толщине утепления.
Звукоизоляция перегородок Плитный утеплитель Rockwool, толщиной 100 мм.
Пароизоляция (стены, перегородки, пол, потолок) Плёнка Ондутис R70. Дополнительная герметизация нахлёстов/примыканий пароизоляционной плёнки клейкой лентой Delta.
Окна Двухкамерные стеклопакеты ПВХ белого цвета, профиль 60 мм. В комплекте: отливы, подоконники, москитные сетки.
Двери Входная- металлическая, утеплённая (Россия). Межкомнатные- филёнчатые.
Наличники на окна и двери Наличник деревянный, строганый, камерной сушки 70-90 мм. с двух сторон.
Лестница (при наличии второго этажа) Деревянная, одно или двухмаршевая. Перила- заводские резные, балясины- заводские точеные, устанавливаются стартовые точёные столбы. Ступени 40х200 мм. Тетива лестницы- 90х140 мм.
Крыша Двускатная, ломаная или вальмовая в соответствии с проектом.
Стропильная система Выполнена из строганой доски камерной сушки 45х145/45х195+/-5 мм. Шаг установки стропил 590 мм.
Обрешётка Выполняется из строганой доски камерной сушки толщиной 20х95+/-5 мм. Шаг крепления обрешетки 350 мм. Контробрешётка выполняется из строганого бруска камерной сушки 45х45+/-5 мм. Крепится по стропилам (вентиляционный зазор).
Подкровельная мембрана Ондутис А100
Кровельное покрытие (на выбор) Металлочерепица 0,45 мм. Цвет на выбор.
Фронтоны (при наличии) Каркас из строганой доски камерной сушки 45х145/45х195+/-5 мм. Обшиваются имитацией бруса камерной сушки, сорт АВ, толщиной 17 мм. Монтаж через строганый брусок камерной сушки 45х45+/-5 мм. (вентилируемый фасад). Влаго-ветрозащитная мембрана- Ондутис А100. Монтаж вентиляционных решёток.
Свесы крыши Ширина 400 мм. Подшиваются вагонкой камерной сушки, сорт АВ.
Терраса/балкон (при наличии) Устанавливаются опорные столбы из строганного бруса камерной сушки 140х140 мм.
Отделка потолка террасы/балкона Евровагонка камерной сушки толщиной 12,5 мм. сорт АВ.
Пол террасы/балкона Шпунтованная доска камерной сушки толщиной 35-36 мм. сорт АВ.
Ограждение террасы/балкона Перила- строганая доска. Балясины- точеные, фигурные. Либо ограждение в скандинавском стиле. Устанавливаются ступени у входа.
Допуск на геометрические параметры Составляет +/- 50 мм по длине с каждой стороны.
Допускается стыковка имитации бруса, вагонки и половой доски По всему периметру стен дома (если ширина и длина дома более 6,0 метров). Вагонки и доски пола в каждой отдельной комнате.
Допуски по имитации бруса, вагонке, доске +/- 5 мм.
В стоимость включена Доставка комплекта материала в радиусе 500 км. от г. Пестова Новгородской области и сборка дома на вашем участке.
Гарантия 5 лет.
Бытовка строительная 2,0х3,0 м. каркасно-щитовая. Стоимость 23000 руб. Остаётся на участке Заказчика.
Туалет 1,0х1,0 м. каркасно-щитовой. Стоимость 12000 руб. Остаётся на участке Заказчика.
Генератор Стоимость аренды на весь срок строительства 15000 руб. ГСМ за счёт Заказчика.

Сооружение каркасных домов выполняется в двух вариантах: под усадку, когда сруб будет отстаиваться на протяжении определенного времени и полностью под ключ.

Зимой эксперты рекомендуют строить дома в холодную погоду, чтобы каркас не промок, в теплое время года - не в дождливую.

Оптимальными для сада или дачи стали малобюджетные дома на винтовых сваях, в нашем каталоге вы увидите одноэтажные и полуторатажные дома.

Когда дом строится для проживания в течение всего года, советуем очень теплые одноэтажные и двухэтажные дома на плитных и ленточных фундаментах.

Имеется два размера утепления: 200 мм и 150 мм. Каркасные дома с утеплителем 150 мм получаются дешевле, но менее энергоэффективными.

Дополнительные услуги


Каркасный дом эркером, по эскизу 34 полутораэтажный с теплоизолированной двускатной верхней конструкцией здания, отличается экологической безопасностью, в связи с использованием ориентированно-стружечных плит, ваты минеральной и базальтовой, а это предоставляет высокую морозостойкость, приятный микроклимат в доме. Параметры этого уютного гнездышка составляют 9х10 м., общая жилая площадь - 86.8 кв.м.. Наша фирма в кратчайшие сроки создаст для вас дом с каркасной структурой по персональному или типовому проекту в Орехово-Зуево в удобное для вас время года и на любом типе грунта.

Популярные проекты


Каркасные дома с мансардой Каркасные дома с балконом Каркасные дома 9х9
хит продаж
Тип:
Общая площадь: 2
2551800
от 2430300
хит продаж
Тип:
Общая площадь: 2
2719800
от 2590300
хит продаж
Тип: с большой террасой
Общая площадь: 2
2950800
от 2810300
Дома из бруса

Заказать или задать вопрос



Заказать или задать вопрос

Заказать звонок